编辑:超越轴承外壳改造
图1:当前设计的悬垂式泵(图片来源:Sulzer Ltd.)
通常被忽视的是,在不需要修改现有管道和基础的情况下,升级泵的全液端以实现更大的可靠性提高。本文将讨论轴承座改造的好处,以及可用于实现API-610水平悬臂泵的最佳可靠性的额外升级。
单级悬挑泵是流体从一个位置转移到另一个位置的一种极为重要的全球资源。这种特殊类型的泵是世界上发现的所有泵类型中数量最多的,因为它们提供了相对大的流量和压力范围,通常维护简单(图1)。在某些情况下,所服务的过程可以从重到轻的比重液体,低温到超过800°F(427°C)。这种多功能性通常使这些泵成为维护的焦点,以提高可靠性和运行时间,以保持生产设备的正常运行。
单级悬挑泵自问世以来一直在不断发展。随着技术和经验的积累,制造、材料和设计的进步不断提高了这些类型泵的整体可靠性。卧式OH泵的基本设计标准一直保持相对不变;由带有径向和推力轴承的轴承座和悬挂在轴承座外的轴上的叶轮组成。行业标准,如API-610,采购建议和设计考虑已经提出并稳步修订,以帮助提高这种类型泵的整体可靠性。
通用API-610当前版本的轴承座改造可为遗留式泵提供几项升级,这些泵可能受制于较短的平均维修间隔时间(MTBR)计划或瞬变减排要求。这些改造将,在大多数情况下,提供单排,深槽,径向轴承和成对背对背角接触推力轴承。通过油环和润滑通道改善润滑性能。更大的油底壳,风扇和铸造翅片已添加,以减少或消除需要外部冷却水的要求。最后,密封腔和轴的设计满足当前API-610挠度限值和表7尺寸。这允许使用API-682密封升级密封技术,提高使用寿命和密封性能。
通常不考虑对泵的现有液体端部件进行升级。许多传统泵的设计早于许多行业标准,不包含一些易于维护和压力边界可靠性的功能。以下是Sulzer在多个终端用户中实施的升级项目,使泵送设备更加坚固,并延长了维修之间的操作间隔。
喷嘴装载的改进
在实施现代工业规范之前购买和安装的设备可能缺乏处理由连接管道施加的外部喷嘴力和力矩的能力。当施加过大的这些力时,可能会导致泵壳和/或底座变形,这是由于不对中、过度振动和潜在的磨损部分接触。通常,这些泵的安装脚很薄,带支撑最小,法兰为平面,额定压力为150或300 psi(10或20 bar)。这些配置可以通过对现有模式的适当修改进行升级,同时保持适合现有管道和底板安装的能力。
遗留的安装脚和织带可能是一英寸厚,甚至更少,这取决于最初的设计。更新的风格符合API-610泵提供更厚的脚和织带,以支持API-610喷嘴加载要求。图2描述了为提高泵的整体刚度而对传统设计进行的模式更改。
如图2所示,安装脚的厚度增加了一倍多,为铸件提供了额外的强度。从底部到蜗壳外壁的腹板支撑也增加了厚度。除了这些变化之外,这种情况下的法兰从最初的美国国家标准协会(ANSI) 300#凸起面设计更改为ANSI 600#厚度,具有与原始300#法兰相同的钻孔和加工尺寸。所有这些改进都有助于提高壳体在存在管道应变时的总体抗偏转能力,或增加与泵对中有关的管道应变的总体容忍度。
为了提高泵和壳体连接的整体刚度,最后进行了升级,在排气和排水法兰上安装了扣板。增加扣板减少了由于振动疲劳引起的小口径管道焊接失效的机会。
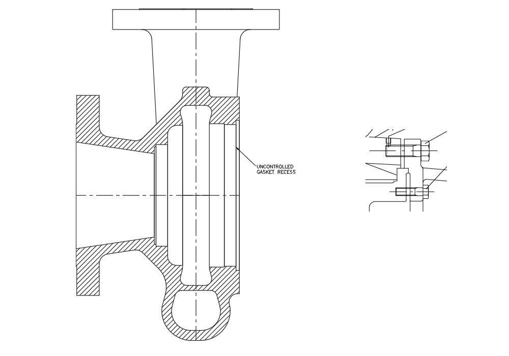
外壳密封装置
ANSI/美国机械工程师协会(ASME) B73.1泵,以及api前风格的泵,直到API-610第4版,都不需要在外壳和外壳盖之间使用受限的、可控压缩的螺旋缠绕垫片。在许多情况下,所使用的垫圈是夹在盖法兰和外壳之间的非金属薄片。这些垫圈可能有些不可靠,因为通过密封面的压缩可能根据套管螺栓的扭矩而变化。此外,这些材料对泵送流体的温度和化学成分也有限制。API-610第5版介绍了对密闭、可控压缩、螺旋缠绕垫片的要求,以提高泵的密封能力,并扩大了温度和产品的操作极限。
许多制造商的轴承座改造纳入螺旋缠绕垫片的使用在一个新的外壳盖的设计。但是,在大多数情况下,还必须为这种转换做好准备。许多传统风格的泵可能有一个凹腔非金属风格的垫圈,但机器尺寸很少是一个精确控制的深度。其他类型的外壳可能根本没有垫片凹槽。如前一节所述,在对现有外壳模式进行修改时,可以结合改进整体密封设计的机会。如果套管盖接口的现有套管尺寸不允许加入螺旋缠绕的垫片槽,则可以在外径处添加附加延迟。然后增加套管封闭螺栓圈,为现代API-610表7密封腔的安装创造必要的空间。
液压重估和冶金升级
在现代炼油应用中,与最初的工作要求相比,由于生产需求的变化,最初的泵设计工作点很可能在预期的泵使用寿命过程中发生变化。在新供应的壳体的重新设计阶段,可以应用液压速率来优化泵的性能,以满足当前的运行需求。蜗壳唇的延伸或从原始设计的削减可能足够。如果需要,可以创建一个备用的蜗壳芯盒,以提供更紧密匹配的液压轮廓。为了进一步优化最佳效率点以达到所需的工作流量和压差,可以安装一个改进的高或低容量叶轮。
图4a和4b描述了悬起泵的额定排量。原来要求的泵的工作点已被降低,新的批处理工艺甚至需要进一步降低流量。上述蜗壳改造和叶轮更换的组合结果是满足客户要求的满意运行曲线。
腐蚀/侵蚀升级
为了防止泵壳的腐蚀或侵蚀,最好升级泵壳的冶金工艺,以更好地适应工艺流体。这些变化可能包括从碳钢升级到马氏体、奥氏体或双相不锈钢。或者,许多这些遗留的泵可能是铸铁的。用碳钢或其他可焊合金代替铸铁,可能会使设备寿命延长几十年。对于高侵蚀条件,还可以考虑在流动通道中应用涂层的其他步骤。这些技术可能包括高速氧燃料(HVOF)喷涂、焊接覆盖和扩散涂层等技术。
结论
悬垂轴承座改造长期以来一直被证明是一种有助于延长API和API前风格泵的MTBR的升级。然而,重要的是要认识到,在不需要对现有设备进行额外现场修改的情况下,新泵技术可以在遗留设备上得到进一步的应用。这些改造,虽然前期准备时间长,成本高,但与现场改造基板和管道安装的成本相比,可能就相形见绌了。除了这些支出外,效率的提高通常可以用于进一步延长装置的寿命和降低操作成本,同时满足设备修改后的生产需求。
来源:苏尔寿公司有限公司







